Добро пожаловать на http://vipplan.ru

Випплан Павловская - это тысячи проектов домов в нашем каталоге!

Вы всегда сможете найти для себя проект дома вашей мечты! Даже если этого не случилось, мы готовы в любую минуту предложить проект индивидуального дома.

Забыли пароль?
Вы еще не регистрировались?

Перейдите по ссылке ниже на страницу регистрации.

Регистрация...

Внимание!!!

В проектную документацию могут быть внесены изменения любой сложности, в соответствии в Вашими пожеланиями!

Полезные статьи

Уклон кровли дома

Чтобы вода быстрее уходила с кровли Вашего дома, скатам необходимо придать уклон, который выражающийся в процентах или градусах и измеряющийся геодезическими инструментами. Уклон кровли обозначает угол наклона ската к горизонту. Чем больше уклон, тем круче крыша. У новомодных зданий наклон кровли делают не очень большим....

Применение свайных фундаментов

Сваи представляют собой длинные стержни, погруженные глубоко в грунт или изготовленные непосредственно в грунте. Покупные сваи с одной стороны имеют заостренный конец, который забивается в почву с помощью специальной техники. Установка свай, изготовленных своими руками, предполагают бурение скважин, армирование и заливку бетонного раствора. ...

Проекты домов и коттеджей > Каталог проектов домов > Проект одноэтажного дома с мансардой и гаражом Vg1474

Проект одноэтажного дома с мансардой и гаражом Vg1474

Проект одноэтажного дома с мансардой и гаражом
Зарегистрируйтесь

Проект № Vg1474


Техническое описание
Общая площадь: 295.6 м2
Жилая площадь: 130.95 м2
Высота здания: 8.72 м
Размеры дома: 16.24м×17.16м
Кол-во комнат: 7
Цокольный этаж: нет
Гараж: есть
Мансарда: есть

Kонструкция
Фундамент: Ленточный монолитный ж/б
Перекрытия: Металлические
Материал стен: Кирпич

Архитектурный раздел
Конструктивный раздел
АР+КР - 72 000 (Со скидкой 20%)
Индивидуальный проект одноэтажного дома с мансардой с размерами здания 16,24 x 17,16 м. Наружная отделка здания — клинкерная плитка. Отделка вентканалов и дымоходов - штукатурка. Цоколь - отделка клинкерной плиткой. Фундамент - ленточный, монолитный, ж/б. Наружные стены: забутовочный кирпич, экструдированный пенополистирол, отделка фасадной штукатуркой. Внутренние стены и перегородки 1 этажа - кирпич забутовочный. Перегородки мансардного этажа - ГКЛ на металл. каркасе с использованием теплошумоизоляционных материалов в межкаркасном пространстве. Перемычки монолитные и сварные из профиля проката. Пол первого этажа - пол по грунту. Межэтажное перекрытие: металлические балки. Потолок мансардного этажа - по затяжкам стропильной системы. Крыша многоскатная. Покрытие - металлочерепица. Лестница - металлическая (деревянная по металлическому каркасу), выполняется по индивидуальному заказу. Окна - металлопластиковые, выполненные по индивидуальному заказу.
Генплан застройки участка / Паспорт проекта 7000 руб / 10000 руб
Инженерный раздел (полный) 148000 руб
Смета на строительство 74000 руб
Теплотехнический расчет материалов стен Бесплатно
Стоимость проекта со незначительнми изменениями 82600 руб
Стоимость проекта со средними изменениями* 104800 руб
Стоимость проекта со значительными изменениями** 110700 руб

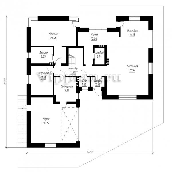
План первого этажа


Гараж — 34,27 кв м
Бойлерная — 9,11 кв м
Кабинет — 11,33 кв м
С/у — 3,68 кв м
Тамбур — 2,33 кв м
Коридор — 11,91 кв м
Ванная — 6,25 кв м
Спальня — 23,44 кв м
Кухня — 13,66 кв м
Кладовая — 2,94 кв м
Столовая — 14,18 кв м
Гостиная — 32,92 кв м

План мансардного этажа


Спальня — 34,73 кв м
С/у — 9,23 кв м
Холл — 21,08 кв м
Гардероб — 8,02 кв м
Спальня — 28,28 кв м
Спальня — 26,24 кв м
Помещение — 50,68 кв м
Проект одноэтажного дома с мансардой и гаражом Проект одноэтажного дома с мансардой и гаражом Проект одноэтажного дома с мансардой и гаражом Проект одноэтажного дома с мансардой и гаражом

Модификации проектов

Внесение изменений и привязка к участку строительства

В любой из проектов от компании VIPplan - Павловская по вашему желанию могут быть внесены изменения в материалы стен, материалы наружной отделки дома, а также будет произведена адаптация проекта под конкретный регион строительства (с учетом грунтов региона, геологических особенностей вашего участка и местных климатических условий) - БЕСПЛАТНО !!! (кроме проектов со скидкой и проектов наших партнеров).

Любой из проектов, размещенных на сайте pavlovskaya.vipplan.ru мы можем выполнить из требуемых вам строительных материалов: ячеистый бетон (газобетон, пеноблок), керамоблок, кирпич, шлакоблок, бетонный блок, дерево (брус, клееный брус), каркасная технология (деревянный каркас, металлокаркас (ЛСТК)).

Фасад дома и его наружную отделку так же возможно выполнить с применением различных облицовочных материалов: структурной штукатурки, (с утеплителем и без), сайдингом (пластиковый или металлосайдинг), фиброплитами, кирпича.

 
6 Избранные
проекты

Доставка проектов по России: Москва (Московская область), Санкт-Петербург (Ленинградская область), Краснодар, Ростов-на-Дону, Ставрополь, Сочи, Волгоград, Новосибирск, Белгород, Брянск, Воронеж, Саратов, Хабаровск, Астрахань, Нальчик, Владикавказ, Екатеринбург, Тюмень, Самара, Нижний Новгород, Казань, Пермь, Уфа, Челябинск, Красноярск, Ханты-Мансийск, Иркутск, Курган, Оренбург, Омск, Томск, Барнаул, Новокузнецк, Кемерово, Абакан, Чита, Якутск, Южно-Сахалинск, Петропавловск-Камчатский и страны ближнего зарубежья: Белоруссия, Украина, Казахстан