Добро пожаловать на http://vipplan.ru

Випплан Павловская - это тысячи проектов домов в нашем каталоге!

Вы всегда сможете найти для себя проект дома вашей мечты! Даже если этого не случилось, мы готовы в любую минуту предложить проект индивидуального дома.

Забыли пароль?
Вы еще не регистрировались?

Перейдите по ссылке ниже на страницу регистрации.

Регистрация...

Внимание!!!

В проектную документацию могут быть внесены изменения любой сложности, в соответствии в Вашими пожеланиями!

Полезные статьи

Монолитный коттедж с несъемной опалубкой

Перед тем, как вы задумаетесь о строительстве своего коттеджа, необходимо выбрать, сами вы будете руководить строительством, нанимать разных рабочих, или будете обращаться в строительную фирму, и заключать с ними договор. Но даже к этому вопросу нужно подходить правильно, обдумав все плюсы и минусы выбора....

Установка систем вентиляции

Проектирование и установка систем вентиляции начинается на этапе создания проекта дома, в котором, наряду с газо- и электрификацией, водоснабжением и системой канализации, проектируется система вентиляции...

Проекты домов и коттеджей > Каталог проектов домов > Проект одноэтажного дома с чердаком Vg1012

Проект одноэтажного дома с чердаком Vg1012

Проект одноэтажного дома с чердаком
Зарегистрируйтесь

Проект № Vg1012


Техническое описание
Общая площадь: 309 м2
Высота здания: 8 м
Размеры дома: 16м×18м
Кол-во комнат: 4
Цокольный этаж: нет
Гараж: нет
Мансарда: нет

Kонструкция
Фундамент: Ленточный
Перекрытия: Деревянные балки
Материал стен: Газобетон

Архитектурный раздел
Конструктивный раздел

Смета на строительство
АР+КР - 84 000 (Со скидкой 20%)
Проект индивидуального одноэтажного жилого дома с чердаком с размерами 16.00 x 17.60 м. Наружная отделка здания – облицовочный кирпич. Отделка цоколя – клинкерная плитка. Фундамент – ленточный монолитный ж/б. Наружные стены запроектированы из газобетонных блоков и утеплителя с отделкой облицовочным кирпичом. Внутренние стены – из газобетонных блоков. Перегородки – из гипсовых блоков. Пол 1-го этажа – пол по грунту. Перекрытие межэтажное – по деревянным балкам с использованием теплошумоизоляционных материалов. Перемычки монолитные и из профиля проката. Крыша - многоскатная. Материал кровли – металлочерепица. Окна - металлопластиковые, выполненные по индивидуальному заказу.
Генплан застройки участка / Паспорт проекта 7000 руб / 10000 руб
Инженерный раздел (полный) 154500 руб
Смета на строительство 57938 руб (77250 руб)
Теплотехнический расчет материалов стен Бесплатно
Стоимость проекта со незначительнми изменениями 97250 руб
Стоимость проекта со средними изменениями* 120500 руб
Стоимость проекта со значительными изменениями** 126600 руб

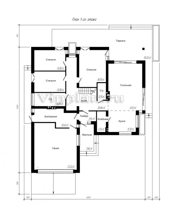
План первого этажа


Тамбур — 3,44 м2
Кладовая — 3,74 м2
Холл — 20,84 м2
Гостиная — 31,41 м2
Спальня — 18,95 м2
Спальня — 12,85 м2
Спальня — 12,85 м2
Кухня — 11,70 м2
С/у — 8,36 м2
С/у — 2,93 м2
Бойлерная — 12,63 м2
Гараж — 37,23 м2
Проект одноэтажного дома с чердаком Проект одноэтажного дома с чердаком Проект одноэтажного дома с чердаком Проект одноэтажного дома с чердаком

Модификации проектов

Внесение изменений и привязка к участку строительства

В любой из проектов от компании VIPplan - Павловская по вашему желанию могут быть внесены изменения в материалы стен, материалы наружной отделки дома, а также будет произведена адаптация проекта под конкретный регион строительства (с учетом грунтов региона, геологических особенностей вашего участка и местных климатических условий) - БЕСПЛАТНО !!! (кроме проектов со скидкой и проектов наших партнеров).

Любой из проектов, размещенных на сайте pavlovskaya.vipplan.ru мы можем выполнить из требуемых вам строительных материалов: ячеистый бетон (газобетон, пеноблок), керамоблок, кирпич, шлакоблок, бетонный блок, дерево (брус, клееный брус), каркасная технология (деревянный каркас, металлокаркас (ЛСТК)).

Фасад дома и его наружную отделку так же возможно выполнить с применением различных облицовочных материалов: структурной штукатурки, (с утеплителем и без), сайдингом (пластиковый или металлосайдинг), фиброплитами, кирпича.

 
6 Избранные
проекты

Доставка проектов по России: Москва (Московская область), Санкт-Петербург (Ленинградская область), Краснодар, Ростов-на-Дону, Ставрополь, Сочи, Волгоград, Новосибирск, Белгород, Брянск, Воронеж, Саратов, Хабаровск, Астрахань, Нальчик, Владикавказ, Екатеринбург, Тюмень, Самара, Нижний Новгород, Казань, Пермь, Уфа, Челябинск, Красноярск, Ханты-Мансийск, Иркутск, Курган, Оренбург, Омск, Томск, Барнаул, Новокузнецк, Кемерово, Абакан, Чита, Якутск, Южно-Сахалинск, Петропавловск-Камчатский и страны ближнего зарубежья: Белоруссия, Украина, Казахстан